HOME ENGLISH CHINESE JAPANESE
´ëÇÐȨ ÀÔ½ÃȨ GLOBAL »çÀ̹öÈ«º¸°ü
¾ÆÆ®È¦¼Ò°³ ½Ã¼³¼Ò°³ ÀÌ¿ë¾È³» Çà»ç¾È³» °ü·Ã»çÀÌÆ®
Àü±¹´ëÇÐ ÃÖ°í¼öÁØÀÇ º¹ÇÕ ¹®È­¿¹¼ú°ø°£
´ë±ØÀå
´Ù¸ñÀûȦ
Àü½ÃȸÀå
Á¼®¾È³»

¼Ò±ØÀå

´Ù¸ñÀûȦ

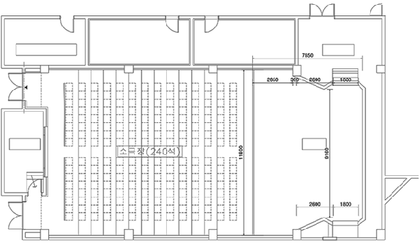
´Ù¸ñÀûȦÀº 240¼® ±Ô¸ðÀÇ ±ØÀåÀ¸·Î µ¶ÁÖȸ´Â ¹°·Ð û¼Ò³âµéÀ» À§ÇÑ Ã¢ÀÛ ÇÁ·Î±Û¸ÅÀ̳ª ¹ßÇ¥¹«´ë µî ´Ù¾çÇÑ À帣ÀÇ °ø¿¬°ú ÃÊû°­¿¬ µî¿¡ Ȱ¿ëµÈ´Ù. ¶ÇÇÑ ÃÖ½ÅÀÇ À½Çâ, Á¶¸í½Ã¼³ ¹× Ư¼ö Á¶¸í±â¸¦ ¿ÏºñÇÏ¿´À¸¸ç ¹«´ë¿Í °´¼®ÀÌ ÀÎÁ¢ÇØ Ã⿬ÀÚ¿Í °ü¶÷°´ÀÌ ÀÚ¿¬½º·´°Ô ¸¸³¯ ¼ö ÀÖ´Â °ø°£ÀÌ´Ù.

Á¶¸íÀåºñ

Àåºñ¸í ±Ô°Ý
SPOT LIGHTHL HL650W FRE 6"
SPOT LIGHTHL HL 1KW CON 8"
UPPER HORIZONT LIGHT IL 150W¡¿ 9LAMP
FOLLOW PIN SPOT LIGHT M.S.R 1.2KW
ÄÜ¼Ö ETC lon

À½ÇâÀåºñ

Àåºñ¸í ¸ðµ¨¸í
¹Í½ÌÄÜ¼Ö SOUNDCRAFT SPIRIT 8 (24ch)
½ºÇÇÄ¿ D.A.S ST 15 / D.A.S ST 18 / D.A.S ST 32 / D.A.S MONITOR-6
´ÙÀ̳ª¹ÍÄÜÆ®·Ñ·¯ RANE DC-24
Çǵå¹é Á¦¾î±â SABINE FBX 2020
ÀÌÆåÅÍ YAMAHA SPX990
¸¶ÀÌÅ©·ÎÆù Sennheiser ME66 + K6 / SHURE SM58 / SHURE SM57
¹«¼±¸¶ÀÌÅ© ¼¼Æ® Sennheiser 100½Ã¸®Áî
Çɸ¶ÀÌÅ© ¼¼Æ® (Çìµå¼¼Æ® 2°³Æ÷ÇÔ) Sennheiser 100½Ã¸®Áî
Ä«¼¼Æ® µ¥Å© TASCAM 302
CDÇ÷¹À̾î TEAC PD-D2500
CDP, Ä«¼¼Æ® TASCAM CD-A500
M.D Ç÷¹À̾î TASCAM MD301
¹«¼±¸¶ÀÌÅ© ¼¼Æ® SHURE ULX2 BETA87A
ÇÉ ¸¶ÀÌÅ© ¼¼Æ® SHURE ULX1

´Ù¸ñÀûȦ ½Ã¼³

SET BATTEN ³ôÀÌ : 3m60(¼ÂÆ®¹° ¼³Ä¡°¡´É ³ôÀÌ : 3m)

SET BATTEN ³ôÀÌ : 3m60(¼ÂÆ®¹° ¼³Ä¡°¡´É ³ôÀÌ : 3m)

´Ù¸ñÀûȦ ´Ü¸éµµ

´Ù¸ñÀûȦ ÁذøÈ¸·Î

´Ù¸ñÀûȦ Æò¸éµµ